Máy cấp nhiệt bể bơi Sirac LSQ-RP là giải pháp sưởi ấm và duy trì nhiệt độ nước bể bơi ở ngưỡng lý tưởng. Thiết bị đặc biệt phù hợp với thời tiết mùa đông ở miền Bắc, khi nhiệt độ xuống thấp các hoạt động bơi lội thư giãn sẽ bị gián đoạn. Sự có mặt của LSQ-RP trong mỗi công trình giúp trải nghiệm bơi lội diễn ra quanh năm, xuyên suốt và liên tục. Sirac LSQ sở hữu dải công suất đa dạng, có thể ứng dụng cho các công trình bể bơi gia đình, spa, nghỉ dưỡng… Với các hoạt động kinh doanh bể bơi, thiết bị càng mang lại những lợi ích quan trọng hơn đối với các chủ đầu tư.
Máy cấp nhiệt Sirac LSQ-RP hiện được nhập khẩu và phân phối bởi Tân Tiến Pool với đầy đủ dải công suất. Áp dụng chính sách bảo hành 02 năm, hỗ trợ kỹ thuật trọn đời. Mọi thông tin chi tiết vui lòng liên hệ: 0969 208 209
Thông số kỹ thuật
- Tên: Máy cấp nhiệt bể bơi LSQ-RP
- Xuất xứ: Trung Quốc
- Thương hiệu: Sirac
- Series (Model): LSQ-RP
- Thời gian làm nóng: 0.6 – 1°C/giờ ±0.1°C (tuỳ điều kiện)
- Chất liệu/Màu sắc: Titanium/trắng
- Kích thước W x D x H: Tùy loại
- Đầu kết nối: 2 inch
- Công suất: 1.2 – 7.6 kW
- Điện áp: 220V – 380V / 50Hz
- Độ ồn: 48dB – 58dB
- Khí gas: R407C
- Số lượng máy nén: 1
- Thiết bị rã đông: Van đảo 4 chiều
- Nhiệt độ hoạt động: 8°C – 40°C
- Trọng lượng: 60 – 280 kg
- Tính năng: Rã đông tự động, làm mát, sưởi ấm
- Ứng dụng: Cấp nhiệt cho bể bơi bốn mùa, làm nóng nguồn nước sinh hoạt trong dân dụng
- Bảo hành: 2 năm
- Nhập khẩu và phân phối: Tân Tiến Pool Sauna
Giới thiệu chung về máy cấp nhiệt bể bơi Sirac LSQ-RP
Máy cấp nhiệt bể bơi, còn được biết đến với nhiều tên gọi khác như máy bơm nhiệt bể bơi, máy gia nhiệt, hệ thống sưởi ấm bể bơi. Đây là giải pháp tối ưu cho việc duy trì nhiệt độ nước ổn định. Chức năng chính của thiết bị này là giúp cho nước trong bể bơi của bạn luôn ở ngưỡng nhiệt lý tưởng và đảm bảo sức khỏe cho người bơi lội. Những tên gọi này xuất phát từ vai trò quan trọng của máy trong việc tăng nhiệt độ nước, đặc biệt là trong những tháng mùa đông lạnh giá.
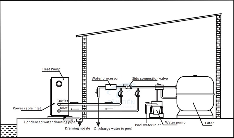
Máy cấp nhiệt bể bơi Sirac LSQ-RP được thiết kế với cấu trúc nhỏ gọn, bao gồm bốn bộ phận chính: máy nén, bình ngưng tụ, van tiết lưu và giàn bay hơi. Sử dụng công nghệ heat-pump, thiết bị này khai thác năng lượng từ không khí để làm nóng nước một cách hiệu quả và tiết kiệm tối đa chi phí vận hành.
LSQ-RP được trang bị hệ thống bảo vệ an toàn hiện đại, bao gồm cảm biến dòng chảy, tự ngắt khi quá nhiệt. Các chức năng này giúp máy hoạt động an toàn và bền bỉ, đồng thời đảm bảo hiệu suất tối ưu ngay cả trong điều kiện môi trường khắc nghiệt.
Các Tính Năng Nổi Bật Của Máy Cấp Nhiệt Sirac LSQ-RP
Chất liệu cao cấp và độ bền tối ưu
Bộ trao đổi nhiệt của máy cấp nhiệt bể bơi Sirac LSQ-RP được làm từ titanium, nổi bật với khả năng làm nóng nhanh chóng, chống ăn mòn hiệu quả. Phần vỏ máy làm bằng thép không gỉ, sơn tĩnh điện nâng cao độ bền và đảm bảo tính thẩm mỹ cho thiết bị.
Máy cấp nhiệt Sirac LSQ-RP trang bị bộ điều khiển màn hình LCD với các tính năng hiện đại như đồng hồ hẹn giờ và thông báo tình trạng lưu lượng nước và áp suất. Điều này giúp người dùng dễ dàng điều chỉnh và quản lý vận hành của thiết bị.
Tiêu chuẩn khí gas thân thiện với môi trường
Sản phẩm sử dụng khí gas R407C, một chất làm lạnh không chứa Clo và không phá hủy tầng Ozon, giúp bảo vệ môi trường, đảm bảo hiệu suất làm việc tối ưu. Đồng thời lắp đặt vào hệ thống vận hành bể bơi cũng đảm bảo tính an toàn trong hệ thống vận hành chung, không ảnh hưởng tới sức khỏe người bơi lội
Công suất đa dạng, vận hành linh hoạt
Máy cấp nhiệt Sirac LSQ-RP có nhiều mức công suất từ 1.2 – 7.6 kW, phù hợp với diện tích bể bơi khác nhau, từ bể bơi quy mô từ nhỏ tới lớn. Bạn có thể lựa chọn dòng máy phù hợp với nhu cầu sử dụng cụ thể của mình. LSQ vận hành trong dải nhiệt độ từ -10°C đến 40°C, đồng thời có chức năng tự động đảo ngược về chế độ rã đông khi cần thiết, có thể lắp đặt trong những vùng có khí hậu khắc nghiệt như có tuyết rơi, đóng băng vẫn đảm bảo độ bền bỉ và ổn định.
Sirac LSQ ứng dụng đa dạng, tích hợp vào các mô hình bể bơi
Với khả năng ứng dụng đa dạng, Sirac LSQ phù hợp cho nhiều loại bể bơi khác nhau từ bể bơi gia đình, bể bơi công cộng, khu nghỉ dưỡng, đến các bể bơi thể thao và thi đấu chuyên nghiệp. Đặc biệt, nếu bạn đã sở hữu bể bơi và phòng kỹ thuật đang cần nâng cấp hệ thống cấp nhiệt, máy hoàn toàn dễ dàng tích hợp vào các hệ thống hiện có. Thao tác lắp đặt rất đơn giản và nhanh chóng, đảm bảo độ tương thích và hiệu suất cao.
Thiết bị bể bơi Tân Tiến cao cấp, hỗ trợ khách hàng tối đa
Tân Tiến Sauna cung cấp máy cấp nhiệt bể bơi Sirac LSQ-RP chính hãng và dịch vụ hỗ trợ khách hàng chu đáo. Công nghệ gia nhiệt hiện đại, cao cấp mang tới các bể bơi bốn mùa chất lượng, giãn nở công suất bể bơi hoạt động quanh năm, thỏa mãn nhu cầu bơi lội vào bất cứ thời gian nào của khách hàng. Chúng tôi cam kết cung cấp sản phẩm chính hãng với chính sách bảo hành đầy đủ, hỗ trợ kỹ thuật và đồng hành cùng khách hàng để bạn yên tâm hợp tác, lắp đặt và sử dụng.
Nếu bạn đang tìm kiếm một giải pháp hiệu quả và tin cậy cho việc làm ấm nước bể bơi, máy cấp nhiệt bể bơi Sirac LSQ-RP là sự lựa chọn lý tưởng. Ngoài ra, Tân Tiến còn có đa dạng các thiết bị bể bơi, linh phụ kiện khác. Hãy liên hệ với chúng tôi để nhận tư vấn và báo giá ưu đãi ngay hôm nay 0969 208 209
Đánh giá
Chưa có đánh giá nào.